Pronájem rodinného domu K5, 5+kk, plocha 114 m2, pozemek 368 m2, ul. Lipoltická, Praha - Vinoř

55 000 Kč za měsíc

Užitná plocha 114 m², pozemek 368 m²

Lipoltická, Praha

Pronájem rodinného domu K5, 5+kk, plocha 114 m2, pozemek 368 m2, ul. Lipoltická, Praha - Vinoř

 

Dům je součástí dvojdomu, levá polovina. Zahrada orientována na jihozápad. Slunný pozemek, rodinné bydlení, vzdušné a prostorné místo. Klid. Děti vítány.

Před domem 2 parkovací stání na vlastním pozemku, další možnosti parkování v rámci ulice součástí obytné zóny.

Zahrada založená s travnatou plochou, terasou se zastřešením a zahradním skladem. Dům byl užíván doposud majitelem a jeho rodinou, proto můžete využít zázemí dětského hřiště, trampolíny a menšího místa pro pěstování ovoce, zeleniny.

 

Prohlídky od 31.3.2026 .

Údržba, opravy, výmalba proběhla, připraveno k nastěhování pro prvního nájemníka.

 

Nájemní smlouva na 1 rok s možností prodloužení, preferujeme 2 a více let. Měsíční nájem 55.000,- Kč + služby 5.000,- / měs. (elektřina, voda, svoz odpadu, vše zálohově, každý rok vyúčtování, vše u PRE a Veolia/PVK). + internet Optika O2 250mBit za 399,- / měs.

Spotřeba nastavena a ověřena reálným provozem domu 2+3děti.

Nájemné se platí k 20. v měsíci na měsíc následující.

Součástí nájemní smlouvy Inflační doložka a povinnost sjednat pojištění odpovědnosti. Doporučujeme sjednat pojištění domácnosti.

Jistota (kauce) 110.000,- Kč. První nájem a jistota splatná při podpisu Nájemní smlouvy.

Odměna RK 60.000,-.

Upozorňujeme, že Zájemce bude požádán o vyplnění krátkého formuláře. Rádi bychom se o Vás dozvěděli základní informace.

Preferujeme bez domácích mazlíčků a nekuřáky. Dohoda možná.

 

Energetická náročnost B, tepelné čerpadlo Daikin vzduch/voda, podlahové topení = nízké náklady.

 

Dům vybaven:

- kuchyňská linka vč. spotřebičů: lednice, mrazák, myčka, dřez, mikrovlnka, trouba, varná indukční deska, digestoř,

- interiérové osvětlení, zrcadla a nábytek v koupelně

- předokenní žaluzie ve všech oknech, dálkově ovl., ovl. přes TaHoma, sítě proti hmyzu na vybraných oknech

- založená zahrada, trávník, rostliny, stromy, zahradní sklad

Úložný prostor:

- v 1.NP: ve vstupu botník a vestav skříň

- šatna/pracovna vestavěná skříň

- ve 2.NP v každé ze 3 ložnic vestavěná skříň

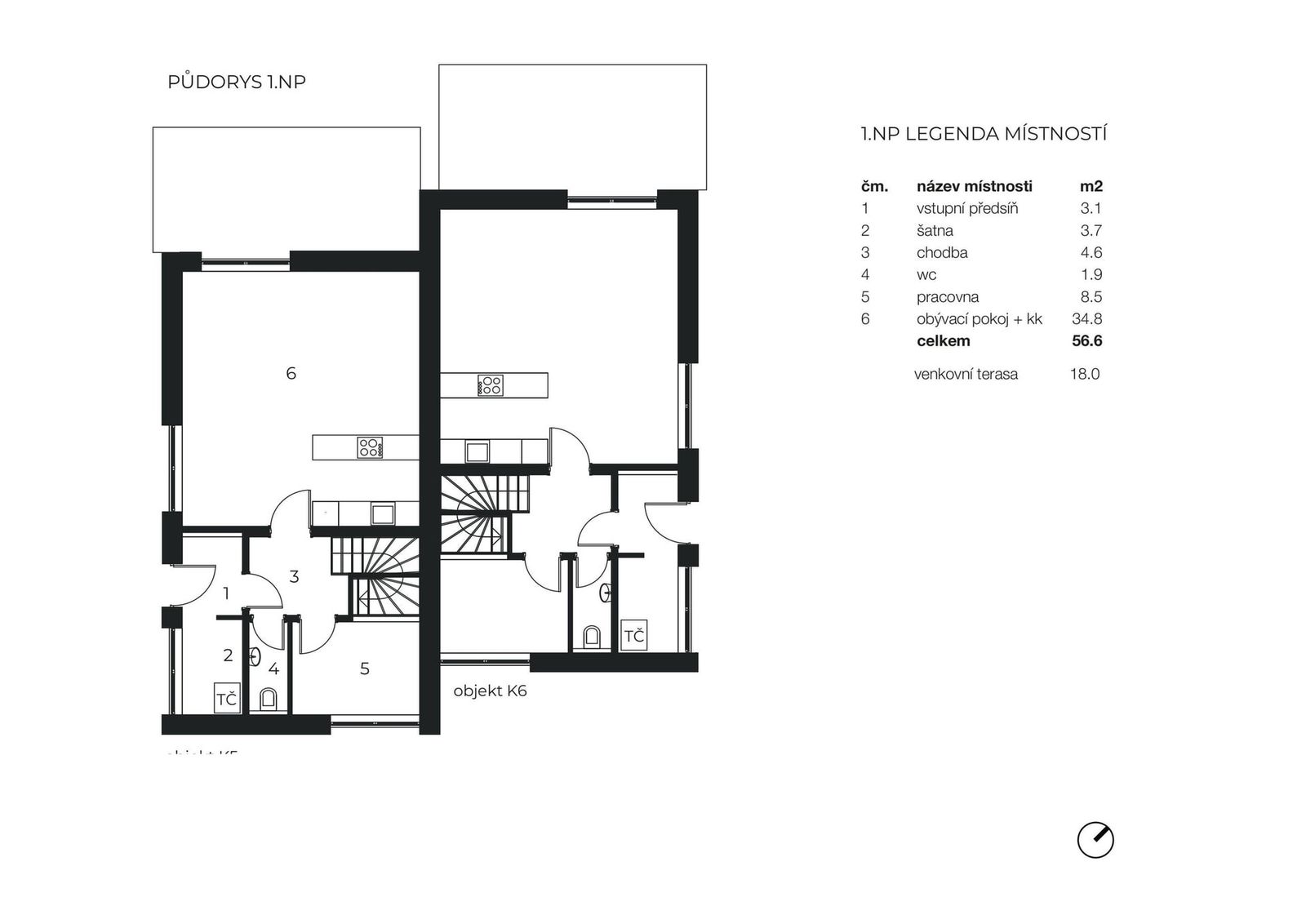
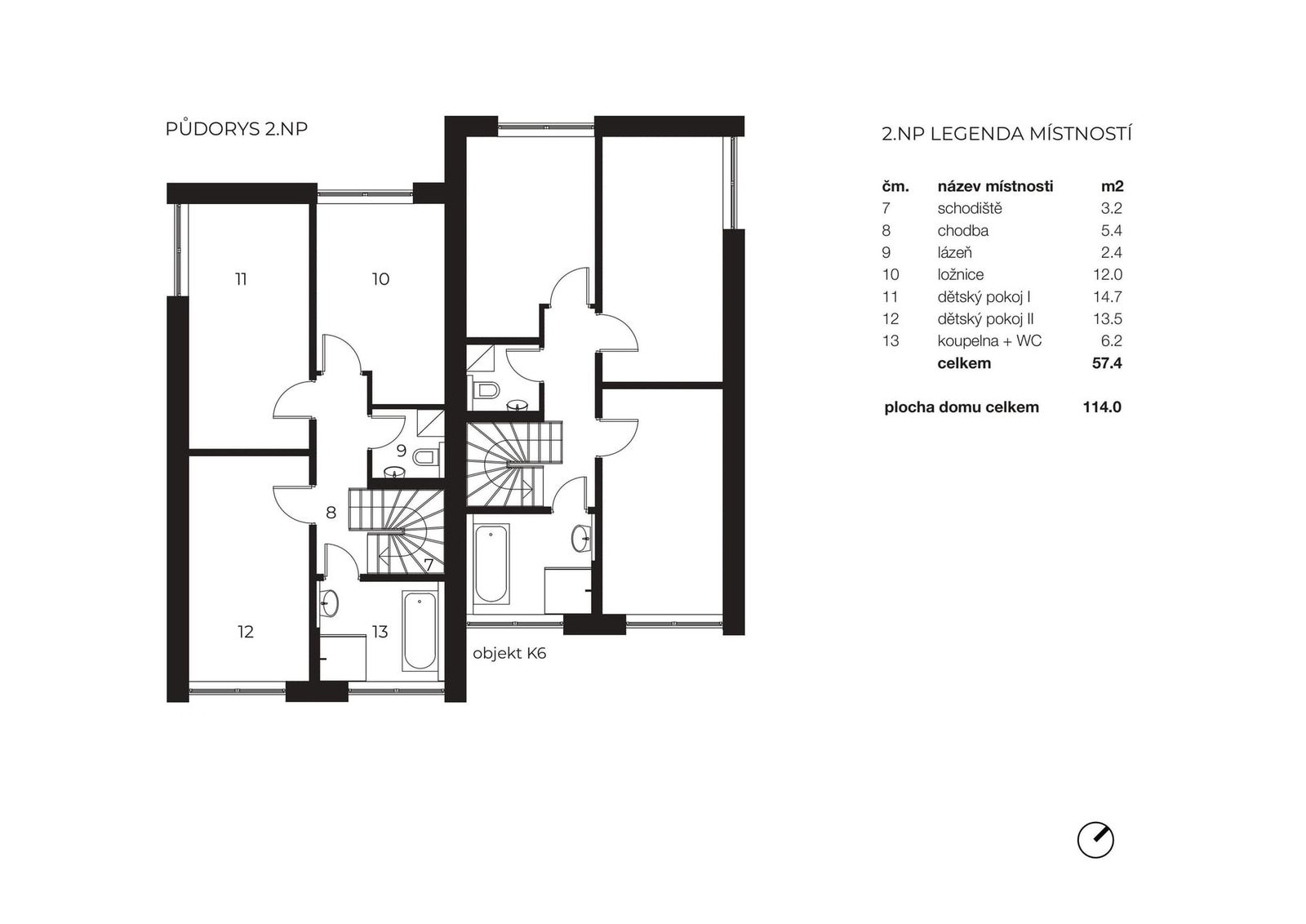
Dispozice:

1.NP:

vstup s technologií umístěné mimo manipulační prostor, chodba, samostatné WC, menší pracovna nebo úložný prostor/šatna a vstup do obývacího pokoje, z obývacího pokoje výstup na terasu

2.NP: samostatné WC s prostorem pro pračku a sušičku, koupelna s vanou a sprch. koutem, 3 ložnice

Dům je vybaven základním vestavěným nábytkem viz foto, úložným prostorem a svítidly. Dokončen  byl v 1Q2019 a užíván k rodinnému bydlení současným a prvním majitelem.

 

Martin Hušpauer

Martin Hušpauer

Senior Sales Manager

+420 725 293 493
huspauer@ep.cz Nemovitosti v nabídce

Kontaktujte nás

Cena55 000 Kč za měsíc
Užitná plocha114 m²
Podlaží-
ParkováníAno 2
Výtahne
Balkón-
Lodžie-
Terasa-
Sklep-
PENBB - Velmi úsporná
Referenční číslo191
Newsletter

Nejnovější nabídkydo Vašeho e-mailu

Každý měsíc Vás budeme informovat o nejnovějších nemovitostech v naší nabídce.