Pronájem bytu 3+1, 60 m² - Praha 8 - Palmovka

24 000 Kč za měsíc

Užitná plocha 60 m²

Novákových, Praha

Pronájem bytu 3+1 59 m²
Novákových 1000/21, Praha 8 - Palmovka

 

24 ​0​0​0​ ​K​č​/​ m​ě​s​í​c​ + služby

 

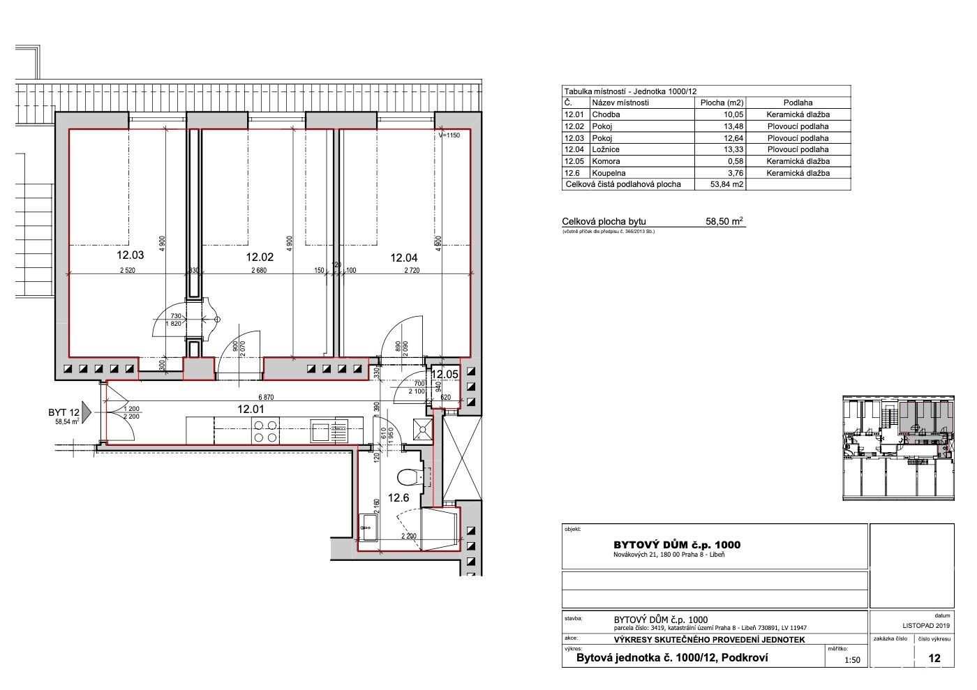
Nabízím k pronájmu částečně vybavený slunný byt v družstevním vlastnictví o dispozici 3+1 a podlahové ploše 58,5 m2 , který se nachází v 5.NP dobře udržovaného domu bez výtahu v ulici Novákových, Praha 8 – Libeň, v docházkové vzdálenosti od stanice tramvaje a metra Palmovka.

 

Popis bytu

Byt je rozdělený na 3 pokoje, chodbu s kuchyňskou linkou a komorou, obývací pokoj, pracovnu, ložnici, koupelnu s toaletou a sprchou. Jednotka je plná denního světla a pokoje jsou orientovány na severozápadní stranu do vnitrobloku.

 

Vybavení bytu

V bytové jednotce je k dispozici nová kuchyňská linka s varnou deskou, myčkou, pečící troubou, digestoří, pračkou a ledničkou. Byt má vlastní plynový kotel pro vytápění a ohřev teplé vody.

 

V obývacím pokoji je sedací souprava, komoda, jídelní stůl a čtyři židle. V ložnici je dvoulůžková postel, noční stolek a šatní skříň. V pracovně je kombinovaná skříň a křeslo. V zádveří chodby je šatní skříň a věšák. S kuchyňské části je vstup do úložné komory. V koupelně je sprchový kout, toaleta a umyvadlo.

 

V bytě je možnost připojení společné TV antény a Internetové připojení.

 

Náklady spojené s pronájmem bytu

Měsíční nájemné – 24 000 Kč

Měsíční paušál na služby – 3 000 Kč

Měsíční záloha na elektřinu – 1 000 Kč (převod smlouvy PRE)

Měsíční záloha na plyn – 2 000 Kč (převod smlouvy PP)

Kauce – 48 000 Kč

Provize RK – 29 040 Kč vč. DPH

 

Podmínky pronájmu

V současné době je byt volný a můžete se ihned nastěhovat.

Nájemní smlouva na 1 rok s možností prodloužení.

Smlouvu s dodavateli energie PRE (elektřina) a PP (plyn) převádí majitel na nájemce.

Byt je vhodný maximálně pro 3 osoby.

 

Lokalita

Bytový dům se nachází ve vedlejší ulici Novákových. Parkování možné na ulici (modrá zóna). Výborná dopravní dostupnost do centra města a jen pár kroků od domu se nachází stanice metra B, autobusu a tramvaje Palmovka.

 

Nákupní možnosti a vše potřebné pro každodenní život najdete pár kroků od domova. Nedaleko bytu se nacházejí Rohanský a Libeňský ostrov, ideální na procházky, vyjížďky na kole či můžete využít multifunkční sportovní centrum Palmovka nabízí posilovnu, aerobní sál a lezeckou stěnu s převisy s výškou přes 8 metrů.

Miroslav Ocelák

Miroslav Ocelák

Senior Sales Manager

+420 608 700 900
ocelak@ep.cz Nemovitosti v nabídce

Kontaktujte nás

Nájemné24 000 Kč za měsíc
Náklady na bydlení6000
Užitná plocha60 m²
Podlaží6. NP
Parkování
Výtahne
Balkón-
Lodžie-
Terasa-
Sklep-
PENBE - Nehospodárná
Referenční číslo177
Newsletter

Nejnovější nabídkydo Vašeho e-mailu

Každý měsíc Vás budeme informovat o nejnovějších nemovitostech v naší nabídce.